VILA B
Projekt : Vila B
Autori: Andrea Ambrovičová, Juraj Mikulaj
Status: Realizácia
Miesto: Bratislava, SVK
Úžitková plocha: 200 m2
Foto: Ľubo Stacho, Tomáš Manina
2008-2010
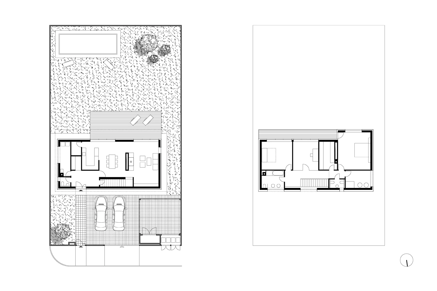
Rodinný dom pre dvojčlennú domácnosť s úžitkovou plochou 200 m² je situovaný na stredne veľkej (600 m²) parcele v BA. Hlavnou ideou konceptu je kompaktné telo domu, smerom na sever ku komunikácii uzavreté a orientované južne do záhrady.
Z Časopisu Atrium 05/2010, text Hana Rifaiová: „Z exteriéru pôsobí maskulínne, pevným a jasným jazykom definuje hmotu prízemia i podlažia, orientáciu obytných priestorov na juh a obslužných na sever. Materiálové riešenie fasády a inteligentný systém ovládania tepla, svetla a zvuku dodali domu štandard mestskej vily. Dom B navodzuje pocit nevtieravého luxusu a pohodlia. Nič nenarúša čitateľnú kompozíciu dispozície, ktorej každá zóna je plná slnka, takže v priestore sa ľahko orientuje a vytvára pocit útulnosti. Tento dojem zintenzívňuje naozaj mimoriadne zvládnutá mierka izieb, od spální až po kúpeľne.
