RODINNÉ DOMY A DVOJDOMY ZÁHORSKÁ BYSTRICA
Projekt: Rodinné domy a dvojdomy Záhorská Bystrica
Investor: Penta Investments Ltd Autori: Andrea Ambrovičová, Juraj Mikulaj, Jana Matlovičová
Status: Vyzvaná architektonická súťaž, 2.cena
Miesto: Záhorská Bystrica
Úžitková plocha: 1071,8 m2
Vizualizácie: ARCHITEKTI mikulaj & mikulajová
2016
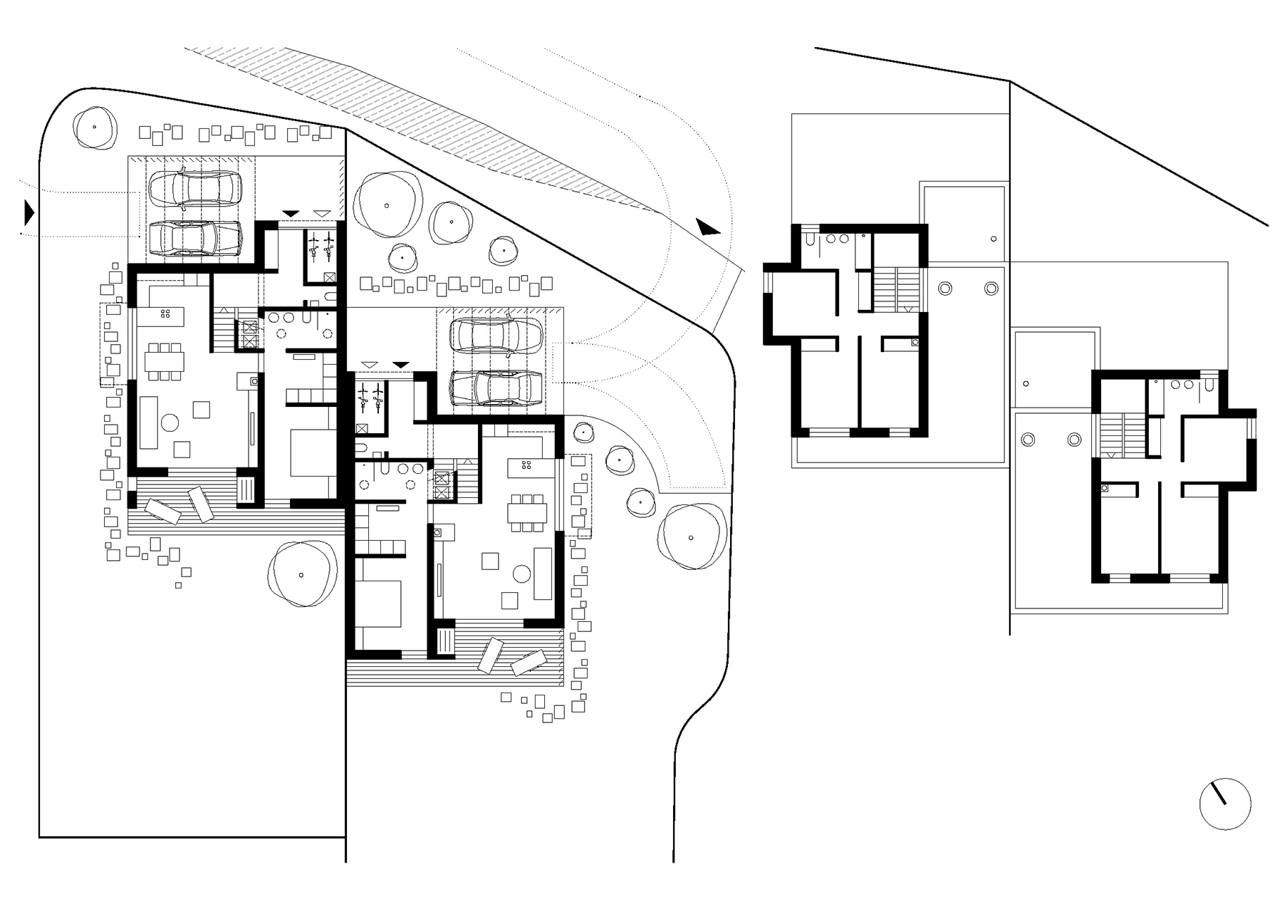
Navrhujeme celkovo sedem rodinných domov (tri rodinné domy a dva dvojdomy) v mierne svahovitom teréne. V relatívne hustej zástavbe rodinného bývania je najdôležitejšou témou zachovanie súkromia pre obyvateľov jednotlivých domov. Hmoty dvojdomov sú vzájomne vyposúvané tak, aby tu vznikali zóny súkromia a aby sa ľudia na terasách navzájom nerušili. Aj hmoty rodinných domov sme vytvarovali tak, aby mal každý dom vlastnú, nerušenú exteriérovú zónu. Ide o murované domy, ktoré sú omietnuté špeciálne štrukturovanou a vzorovanou omietkou. Drevené okná a drevené prvky na terasách a prístreškoch dodávajú tejto architektúre príjemnú atmosféru rodinného bývania.
